Кабельная эстакада – это инженерное сооружение для открытой прокладки кабельных коммуникаций, обычно на территории промышленных, металлургических или нефтеперерабатывающих предприятий. Кабельные эстакады организовывают большие кабельные линии и защищают их от механических и иных повреждений, в частности, исключают контакт кабелей с грунтом и водой.

На территориях промышленных предприятий на эстакадах и в галереях (проходных закрытых эстакадах) прокладывают кабели напряжением до 10 кВ, из которых состоят магистральные или межцеховые сети. На территориях химических, нефтехимических и газовых предприятий, перекачивающих станций, а также на предприятиях с высоким уровнем грунтовых вод также целесообразно использовать эстакады.
Возможно использовать так называемые технологические эстакады для совмещённой прокладки кабелей и трубопроводов.
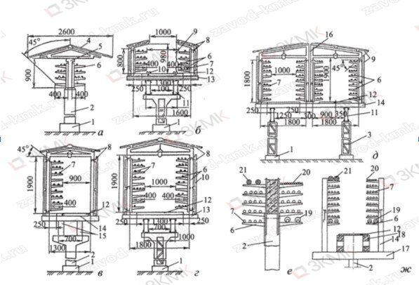
Кабельная эстакада представляет собой несущую систему для кабелей, в её состав входят следующие элементы.
- Опоры. Это вертикальные конструкции, которые устанавливаются на фундамент и передают на него нагрузку от кабелей и крепления. Опоры, как правило, изготавливаются из металла или железобетона и бывают съёмными или несъёмными (стационарными).
- Несущие горизонтальные конструкции, на которых размещаются кабели. Соединяют опоры, бывают сплошными или сетчатыми. В зависимости от конструкции кабельной эстакады это могут быть кабельные полки, лотки или траверсы.
- Для закрепления, подвеса или прокладки горизонтальных конструкций и кабелей используются вспомогательные детали – кронштейны, уголки, траверсы, а также крепёж.
- Защита кабельных трасс от механического повреждения, воздействия окружающей среды, а также противопожарная защита – крышки лотков, противопожарные перегородки и проходки.
- Заземление и молниезащита, для обеспечения непрерывности электрической цепи и безопасности эксплуатации.
Есть множество конструкций кабельных эстакад. По способу обслуживания эстакады делятся на два вида:
- проходные – эстакады, имеющие встроенные проходы, площадки или дорожки для обслуживания и ремонта кабелей
- непроходные – те, в которых нет пешеходного доступа к кабельным коммуникациям.
По типу прокладки эстакады делятся на:
- односторонние – в которых кабельные полки установлены только с одной стороны от опоры
- и двусторонние – в которых кабельные полки размещаются с обеих сторон.
Односторонние эстакады используются там, где есть ограничения по площади или геометрии застройки (вдоль стен зданий или границ участка), а также где требуется проложить меньше кабелей с меньшей нагрузочной способностью.
Двусторонние эстакады обеспечивают большую нагрузочную способность и большую плотность укладки, поэтому применяются для размещения высоконагруженных трасс (до 60 силовых кабелей).
Основное отличие проходных и непроходных кабельных эстакад следует из определения: непроходные эстакады не имеют прохода к коммуникациям и обслуживаются только с автотранспортного средства или крана, а проходные – с проходов или мостков, входящих в конструкцию самого сооружения.
Согласно Правилам устройства электроустановок, издание 7 (ПУЭ-7), Раздел 2, кроме мостиков обслуживания, проходные кабельные эстакады должны иметь входы с лестницами, расстояние между которыми должно составлять не более 150 м.
Кабельная галерея – это проходное кабельное сооружение, закрытое полностью или частично: например, не имеющее боковых стен. Кабельные галереи бывают одно- и двухсторонние, а также трёхстенные – в виде проходного тоннеля с тремя капитальными стенами и кровлей.
Кабельные эстакады, на которых возможно совместное размещение трубопроводов и кабелей, называются технологическими. Обычно их добавляют к уже существующим коммуникациям и используют для прокладки небольшого количества кабелей.
Как правило, кабели прокладывают со стороны трубопроводов с негорючими веществами, а также в зависимости от плотности паров жидкости или газов в них.
Эстакады и галереи бывают металлическими, железобетонными и комбинированными – с обоими типами конструкций одновременно. Согласно ПУЭ 2.3.113, предел огнестойкости железобетонных конструкций эстакад должен составлять не менее 0,75 ч, а предел огнестойкости стального проката – не менее 0,25 ч.
Металлические элементы кабельных эстакад обязательно имеют антикоррозийную защиту для увеличения срока их эксплуатации.
- Простота монтажных и ремонтных работ, визуальной диагностики неисправностей и обслуживания электросетей.
- Защита от механических повреждений и от неблагоприятных погодных условий.
- Естественное охлаждение силовых кабелей.
- Разъемы «Мама-папа», которыми соединяются и прочно фиксируются соединительным комплектом КС М6×10. Стандартная длина лотков для кабеля – 3 метра.
- Замок круглой травмобезопасной формы, который увеличивает механическую прочность лотка в сравнении с прямыми, беззамковыми лотками.
- Совместно с лотком может использоваться перегородка для разделения лотка на два и более отдела в случае монтажа в одном лотке проводки разного типа (информационной и силовой) для исключения наводок.
- Полный ассортимент аксессуаров (вертикальные и горизонтальные повороты, Т-образные и Х-образные отводы) и изделий гэм позволяют свободно изменять направление и уровень, делать ответвления и организовывать кабельную трассу любой сложности.
- Развитая перфорация значительно снижает вес лотка, не изменяя его прочностные характеристики, и позволяет легко закреплять внутри перфорированного лотка кабель при помощи нейлоновых стяжек.
- Замковые крышки на лоток и монтажные аксессуары защелкиваются простым нажатием без дополнительных фиксаторов. Замок на крышке позволяет ей надежно держаться при вертикальном монтаже кабельной трассы.
Кабельная эстакада — это открытое сооружение, которое бывает проходное или непроходное, а галерея — закрытое или частично закрытое проходное сооружение.
Компания ЗКМК производит продукцию
- лотки кабельные оцинкованные перфорированные и кабельные неперфорированные лотки,
- проволочные кабельные лотки и лестничные лотки кабельросты,
- кабельные короба оцинкованные,
- аксессуары,
- настенные и потолочных подвесы.
Листовые металлические лотки изготовляются из рулонной холоднокатанной стали, оцинкованной горячим способом в агрегатах непрерывного цинкования (ГОСТ 14918-80).
Добавить комментарий